ZŁOCIEŃ — Podlaski126
Złocień to dom, który czerpie z tradycji podlaskiej architektury, łącząc ją z wygodą współczesnego życia. Charakterystyczne drewniane narożniki, rytmiczne pionowe i poziome podziały elewacji oraz stonowana paleta kolorów nadają bryle elegancji i spójności. To dom, który naturalnie wtapia się w krajobraz, a jednocześnie wyróżnia dbałością o detal.
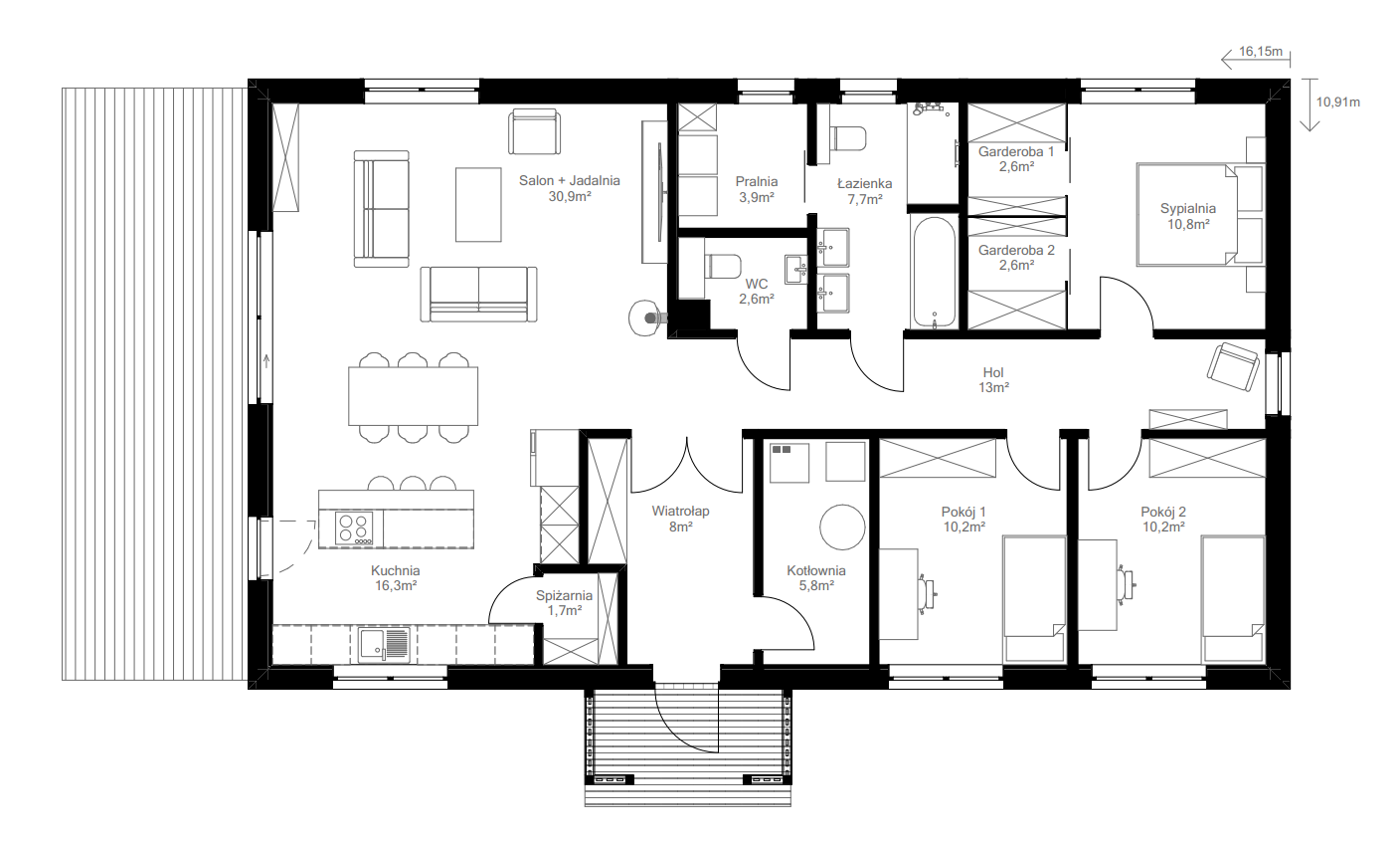
Wnętrze zostało zaprojektowane tak, aby zapewnić wygodę rodzinie, która potrzebuje przestrzeni zarówno do wspólnego spędzania czasu, jak i do pracy czy odpoczynku. Centralnie położony hol prowadzi do dużego salonu połączonego z jadalnią i kuchnią. Ta otwarta strefa dzienna jest jasna, przestronna i sprzyja codziennym spotkaniom. Wygodna kuchnia ma dostęp do spiżarni, co znacznie ułatwia przechowywanie zapasów i utrzymanie porządku.
Część prywatna obejmuje trzy sypialnie, w tym jedną z dwoma garderobami, co pozwala na praktyczne zorganizowanie przestrzeni. Dodatkowo w projekcie uwzględniono osobne WC, większą łazienkę oraz pralnię, dzięki czemu codzienne obowiązki mogą być realizowane wygodnie i bez pośpiechu. Kotłownia została umiejscowiona blisko wejścia, tak aby nie zaburzać funkcjonowania domu.
Złocień to propozycja dla osób, które lubią żyć w zgodzie z naturą, cenią tradycję, ale oczekują także nowoczesnych rozwiązań i układu wnętrza dopasowanego do współczesnego trybu życia.
