SŁOWIK – Podlaski 107
Słowik – Podlaski 107 to dom, który czerpie pełnymi garściami z tradycji Podlasia, interpretując ją z nowoczesną lekkością i funkcjonalnością. Ornamenty zdobiące szczyty, charakterystyczne okiennice oraz wyraziste kontrasty kolorystyczne sprawiają, że budynek ma niepowtarzalny charakter — przywołuje regionalne dziedzictwo, jednocześnie pozostając domem wygodnym na co dzień.
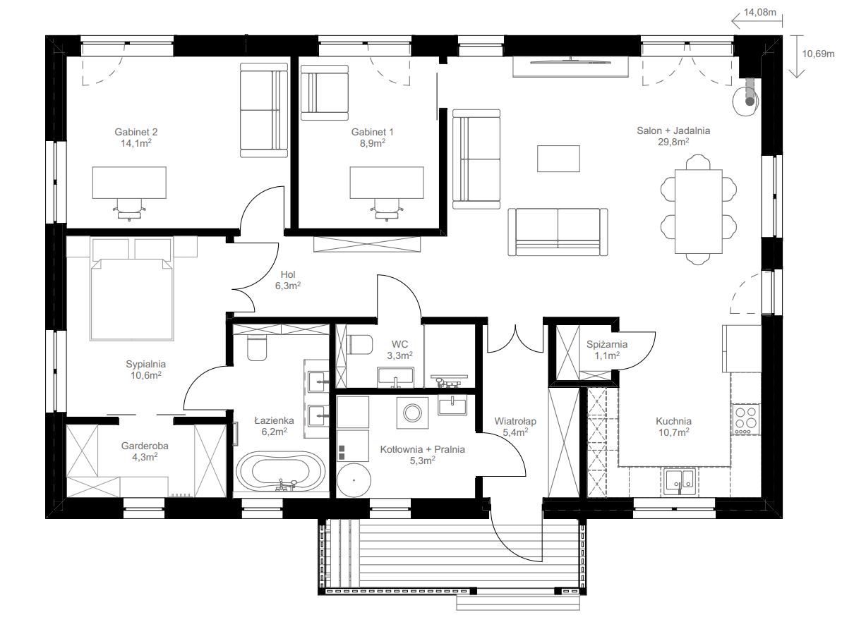
Wnętrze zostało zaplanowane tak, aby stworzyć komfortową przestrzeń dla osób pracujących z domu lub potrzebujących dodatkowych pokoi. Dwa gabinety dają duże możliwości aranżacyjne: mogą pełnić funkcję pracowni, pokojów gościnnych lub przestrzeni dla pasji. Sypialnia z garderobą zapewnia wygodę i prywatność, a łazienka i oddzielne WC ułatwiają codzienną organizację domownikom.
Strefa dzienna składa się z jasnego salonu połączonego z jadalnią oraz kuchnią z przylegającą spiżarnią — to miejsce, w którym dom naturalnie tętni życiem. Duże przeszklenia otwierają wnętrza na taras i ogród, tworząc wrażenie spójności z otaczającą naturą.
Słowik 107 to propozycja dla osób, które kochają klimat podlaskiej architektury, ale jednocześnie chcą przestrzeni nowoczesnej, praktycznej i harmonijnej. To dom, w którym tradycja spotyka się z codziennym komfortem — tworząc miejsce idealne do spokojnego, osadzonego życia.
