BRZEZINKA – Podlaski 109
Brzezinka – Podlaski 109 to dom, który w wyjątkowy sposób łączy tradycyjny podlaski charakter z wygodą współczesnych wnętrz. Wyraźne zdobienia, dekoracyjne wiatrownice i klasyczne okiennice przywołują klimat dawnych drewnianych chat, ale sama bryła pozostaje nowoczesna, energooszczędna i dopasowana do dzisiejszego stylu życia.
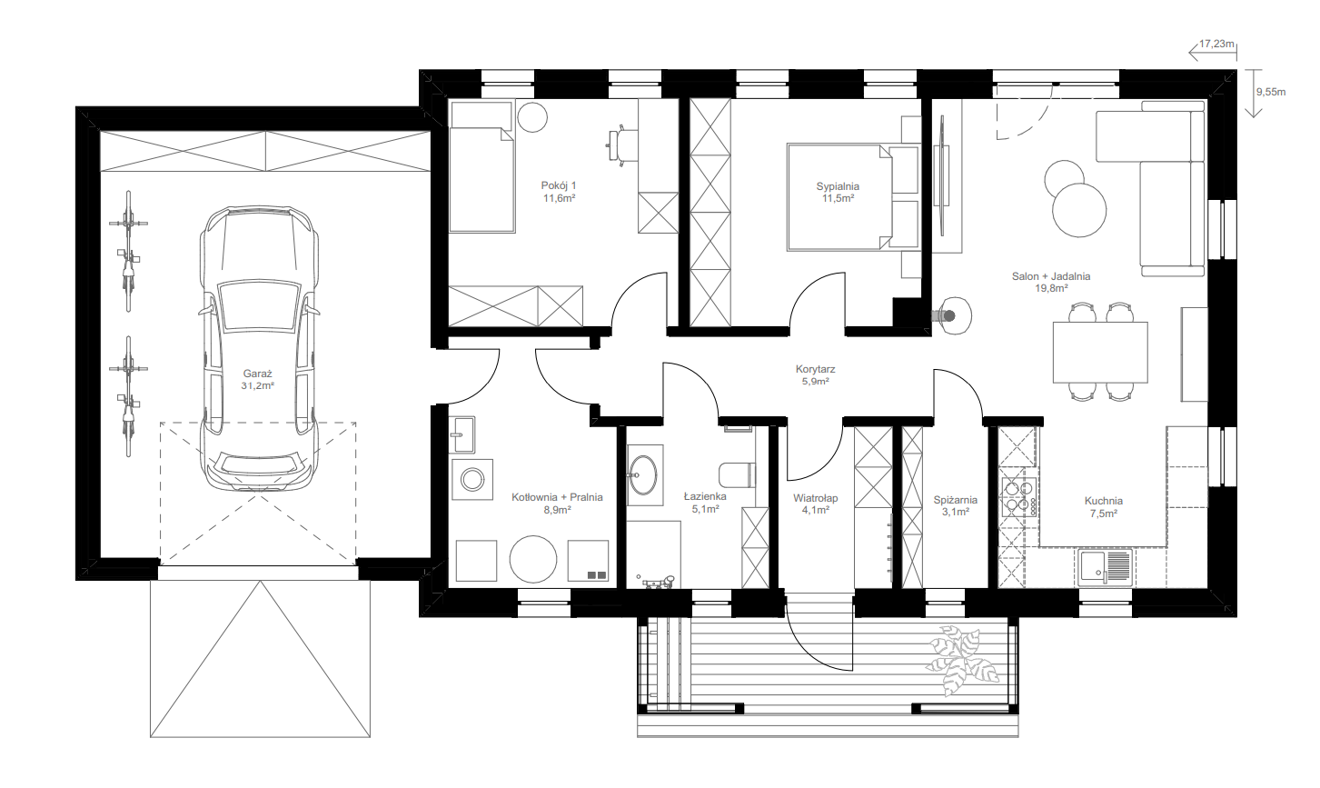
Wejście prowadzi do funkcjonalnej strefy komunikacyjnej, z której przechodzimy do jasnego salonu połączonego z jadalnią i kuchnią. Centralna część domu tworzy przytulną przestrzeń do codziennego życia, a praktyczna spiżarnia ułatwia przechowywanie i utrzymanie porządku. Układ domu jest prosty i wygodny – dwie sypialnie zapewniają komfort mieszkańcom, a łazienka i kotłownia połączona z pralnią zwiększają funkcjonalność na co dzień.
Dużym atutem Brzezinki jest przestronny, jednostanowiskowy garaż, podłączony bezpośrednio do części mieszkalnej. To rozwiązanie idealne dla osób ceniących wygodę i porządek, umożliwiające przechowywanie narzędzi, rowerów czy sprzętów ogrodowych.
Brzezinka 109 to dom, który naturalnie wtapia się w otoczenie lasów, pól i tradycyjnych podlaskich krajobrazów. Jest idealnym wyborem dla osób, które chcą mieszkać nowocześnie, ale blisko natury i z szacunkiem dla lokalnych tradycji. To architektura z duszą – ciepła, wygodna i ponadczasowa.
